Schandauer Straße 70 - Dresden
Auf der Schandauer Straße 70 kommt es im Rahmen eines vielbeachteten Bauprojekts zu zwei wesentlichen Prozessen: Einerseits erfährt die stadtbekannte historische Tabakfabrik f6 eine Bestandsanierung – unmittelbar daneben erfolgt zudem der Neubau zweier moderner Stadthäuser. Dabei entstehen insgesamt 40 Eigentumswohnungen, die sich auf ein insgesamt knapp 3.000 Quadratmeter großes Grundstück verteilen. Interessenten haben die Wahl zwischen 2- bis 4-Raumwohnungen, deren Wohnfläche zwischen 48 und 111 Quadratmetern beträgt.
Ein wichtiges Merkmal sind bodentiefe Fenster, die helle und lichtdurchflutete Räume gewährleisten, sodass eine angenehme Wohlfühlatmosphäre entsteht. Elektrische Rollläden, Echtholzparkett, eine Fußbodenheizung, bodengleiche Duschen sowie innovative Haustechnik gehören zu den weiteren Eigenschaften der Neubau-Eigentumswohnungen. Teilweise sind diese barrierefrei gestaltet und können je nach Bedarf angepasst werden.
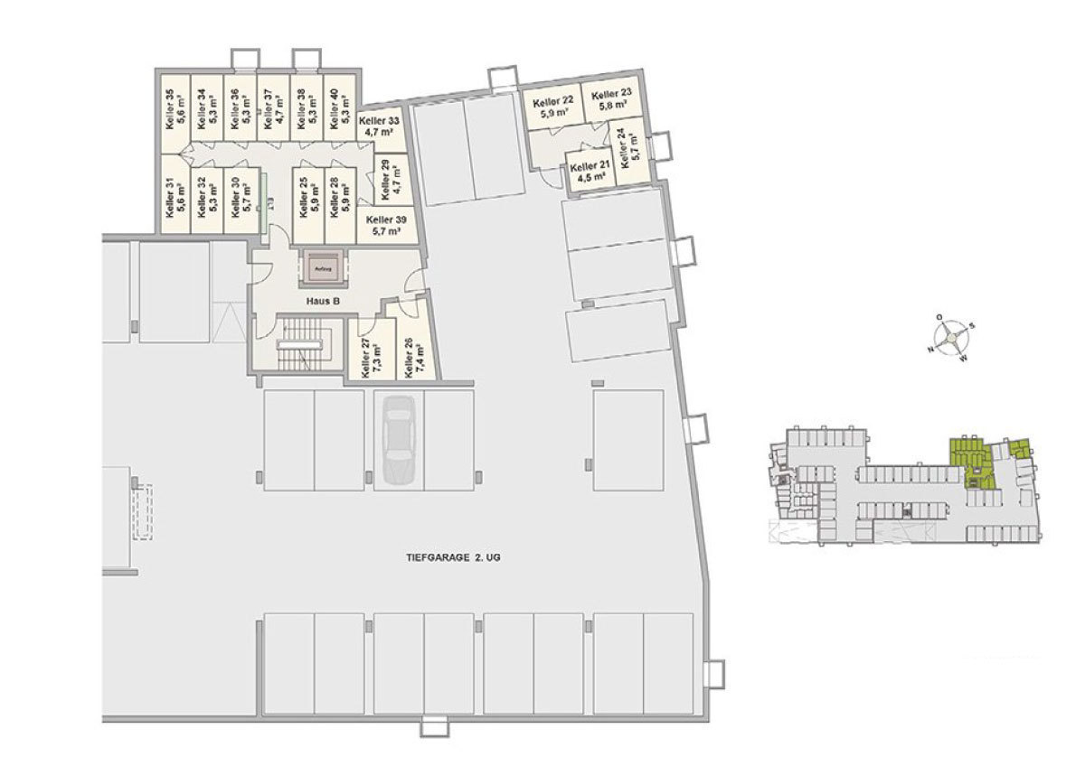
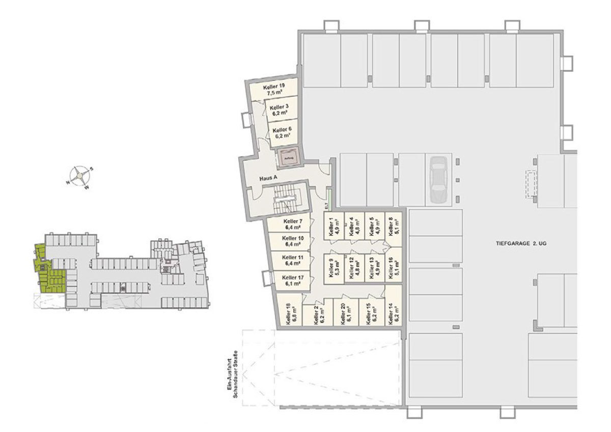
Je nach Etage verfügen die Wohnungen über einen Gartenanteil, eine Terrasse oder einen Balkon. Des Weiteren ist jeder Einheit ein Kellerraum sowie ein Stellplatz in der Tiefgarage zugeteilt. Fahrräder lassen sich im Kellergeschoss sowie draußen in dafür vorgesehenen Häuschen unterbringen. Der Außenbereich besticht mit seiner familienfreundlichen und zugleich zeitgemäßen Gestaltung. Er umfasst einen Spielplatz und mehrere Sitzgelegenheiten, die sich harmonisch in das Gesamtbild einfügen.
Durch die zentrale Lage im Stadtteil Striesen profitieren die Bewohner von einem denkbar optimalen Standort. Charakteristisch für das Viertel sind die prächtigen, überwiegend sanierten Mehrfamilienhäuser aus der Gründerzeit. Banken, Apotheken, Ärzte, Restaurants, die Post sowie öffentlichen Verkehrsmittel – all das ist bequem zu Fuß zu erreichen. Das gilt auch für den Großen Garten, der zum Sporttreiben und Erholen einlädt. Kurze Wege führen mit dem Rad in das historische Stadtzentrum, zum Zoo oder zu den Elbwiesen. Damit erklärt sich praktisch von selbst, warum Striesen gemeinsam mit dem angrenzenden Blasewitz und dem Weißen Hirsch zu den populärsten Stadtteilen von Dresden gehört.
